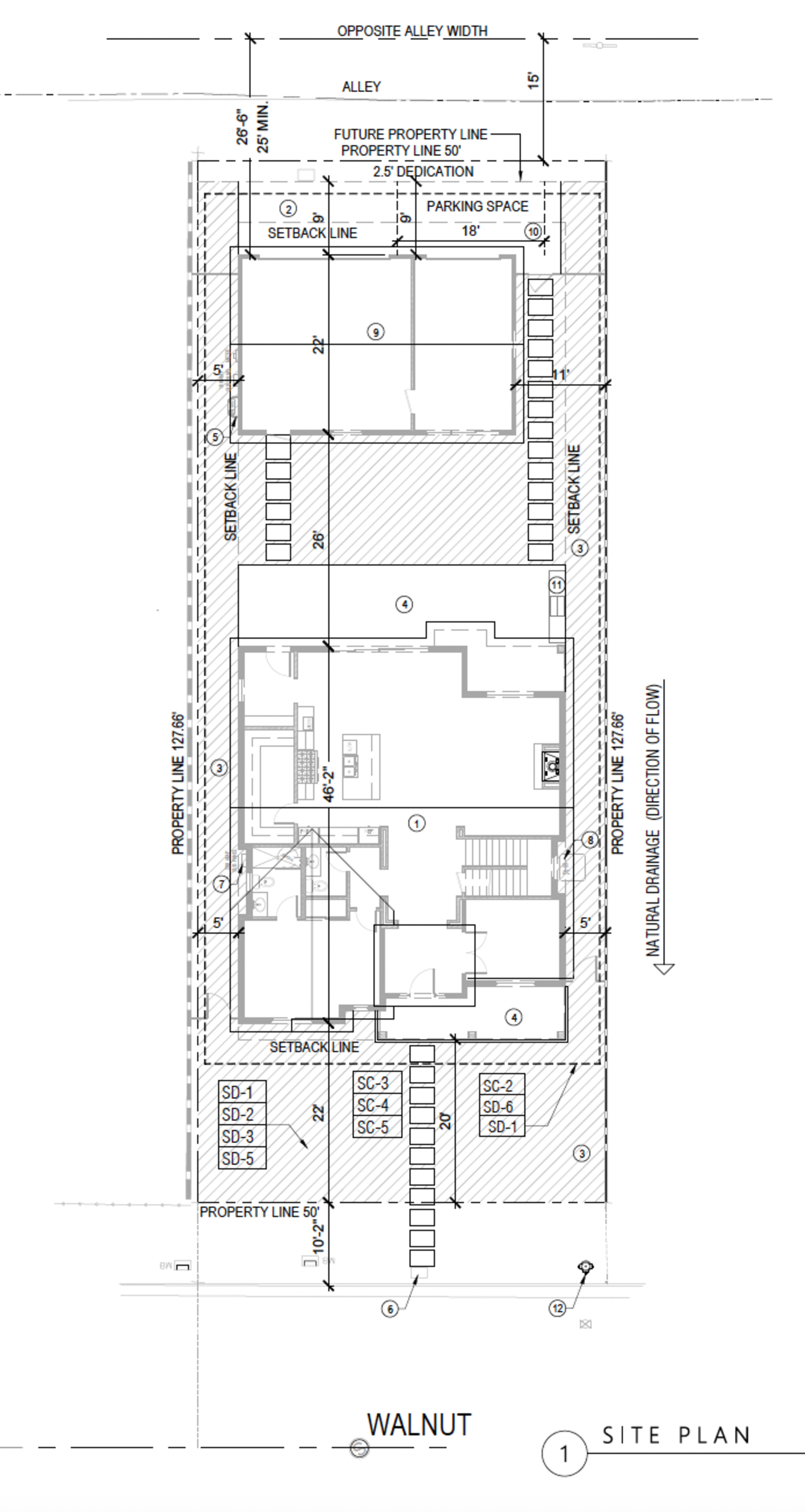
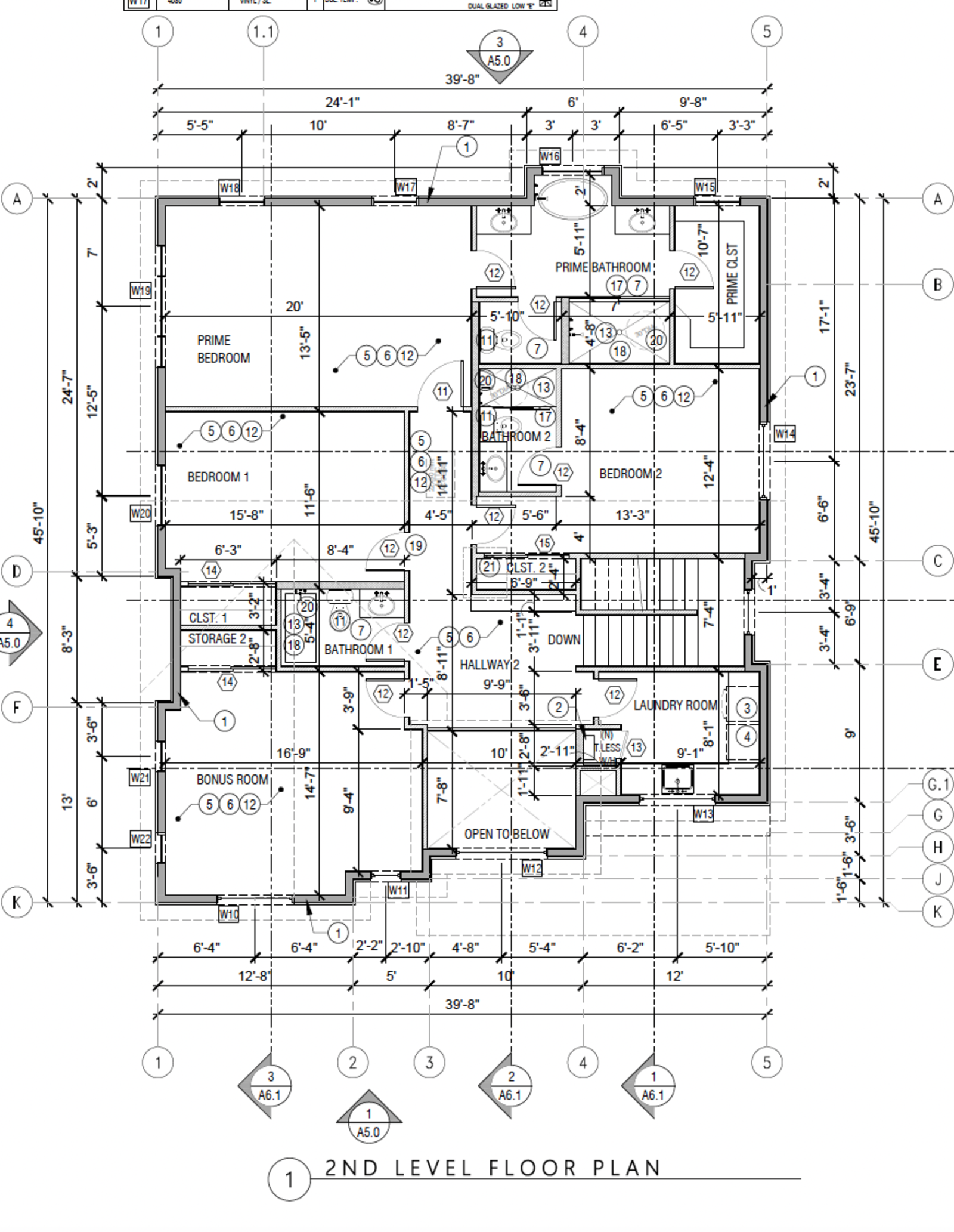
275 Walnut Street in Eastside Costa Mesa offers this New Construction 2025 home thoughtfully designed and lovingly crafted. This tree-lined block is a favorite in Eastside, with proximity to excellent public and private schools, parks and libraries, and of course the amazing retail and conveniences of 17th Street and PCH, and the nature and open space of Newport's Back Bay. The home is approx. 3,271 SF with 5 bedrooms plus an office (or 4 with bonus), indoor laundry, HUGE walk-in pantry, and mud room. The kitchen enjoys a Thermador package with separate full size refrigerator and freezer, 6-burner range and double oven, plus drawer microwave. Downstairs includes a guest bedroom with en suite bath, office/salon/music room, and open concept living, dining, and kitchen great room. Upstairs houses the primary suite, plus three additional bedrooms (or bonus room) and laundry. A 3-car garage lies off the alley, with one separate bay with AC/heat that could function as a gym, additional office, craft or bonus room. A highly amenitized backyard connects the home and garage, including a BBQ & beverage area with TV, fire pit, turf, lounging & dining areas. Inside spaces are flooded with natural light that dances amidst the high volume ceilings. This flexible floor plan can accommodate a growing household and/or provide many options for work and leisure. Tasteful yet ...
Property Details
Features
- New Construction
- Great Schools
- Open Floor Plan
- Large Kitchen
- Stainless Steel Appliances
- Hardwood Floors
- High Ceilings
- Walk-In Closets
- Walk-In Pantry
- Mud Room
- 3-Car Garage
- Indoor Laundry
- Nearby Parks
Video
Photos
Map
Presented By


Rela